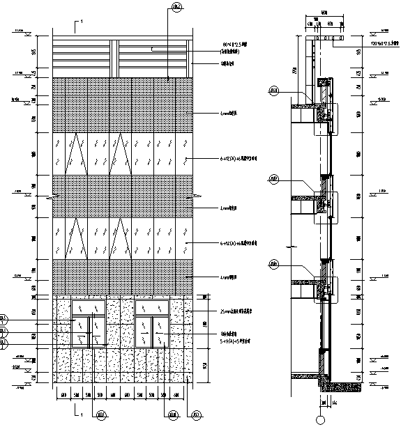
国内办公大楼玻璃幕墙施工方案图纸
- 发布时间:2021-12-06
- 评论次数:0
- 浏览次数:0
- 文件大小:8.07 MB
- 收藏次数:0
- 
								文件名称: 附件-996999868769509577.rar 附件-996999868769509577.rar
								玻璃幕墙施工方案下载
							
						- 公司办公大楼隐框玻璃幕墙施工方案大样图
- 国内企业办公楼铝塑玻璃幕墙施工方案图纸
- 国内大型商场点式玻璃幕墙施工方案大样图
- 国内玻璃幕墙施工组织设计
- 办公大楼消防施工方案
- 国内办公大楼精装修电气施工图纸
- 国内办公大楼屋顶采光顶工程竣工CAD施工图纸
- 办公大楼玻璃幕墙施工组织设计(质量保证体系)
- 办公大楼玻璃幕墙工程施工组织设计
- 国内高层办公楼幕墙施工方案(石材幕墙玻璃幕墙)(与总包方的配合)
- 全玻璃幕墙施工方案
- 大厦玻璃幕墙施工方案
- 会场玻璃幕墙施工方案
- 玻璃幕墙施工方案
- 科研玻璃幕墙施工方案
- 车间玻璃幕墙施工方案
- 高层玻璃幕墙施工方案
- 建筑玻璃幕墙施工方案
- 工程玻璃幕墙施工方案
- 国内厂房加固施工方案
全部评论
						
							评论网友评论仅友表达个人看法,并不表明本站同意其观点,不得发布违反法律法规的内容!
						
						
 
	              	 
	              	 
	              	 
	              	 
	              	