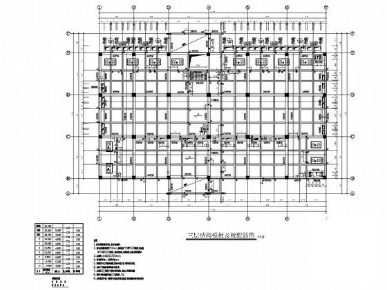
6层框架结构移动通信机楼结构设计施工图纸
- 发布时间:2021-12-05
- 评论次数:0
- 浏览次数:0
- 文件大小:9.89 MB
- 收藏次数:0
- 
								文件名称: 附件-995887970508588580058.rar 附件-995887970508588580058.rar
								通信设计图纸下载
							
						- 6层框架结构移动通信机楼结构CAD施工图纸(计算书)
- 移动通信楼空调设计CAD施工图纸
- 移动通信办公楼电气布置图纸.dwg
- 移动通信基站40米铁塔结构施工图纸
- 9层中国移动省份通信生产楼结构CAD施工图纸
- 移动通信办公楼中央变频空调施工CAD图纸
- 9层中国移动省份通信生产楼结构CAD施工图纸.dwg
- 级10层枢纽通信机楼暖通及动力设计CAD施工图纸
- 高层通信机楼电气CAD施工图纸74张(审图意见)
- 通信机楼深基坑支护施工方案设计CAD大样图
- 19层框架核心筒结构移动通信枢纽楼结构CAD施工图纸(柱下独立基础)
- 现代风格移动通信办公总部设计方案文本(CAD)
- 移动公司综合楼电气CAD施工图纸
- 移动木花坛CAD施工图纸
- 移动信号覆盖施工CAD图纸
- 移动分公司强电施工图纸
- 高层通信办公楼电气全套
- 通信铁塔结构设计CAD图纸
- 3层通信楼建筑施工CAD图纸
- 通信楼综合布线电气CAD施工图纸
全部评论
						
							评论网友评论仅友表达个人看法,并不表明本站同意其观点,不得发布违反法律法规的内容!
						
						
 
	              	 
	              	 
	              	 
	              	 
	              	