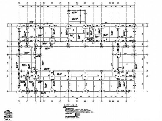
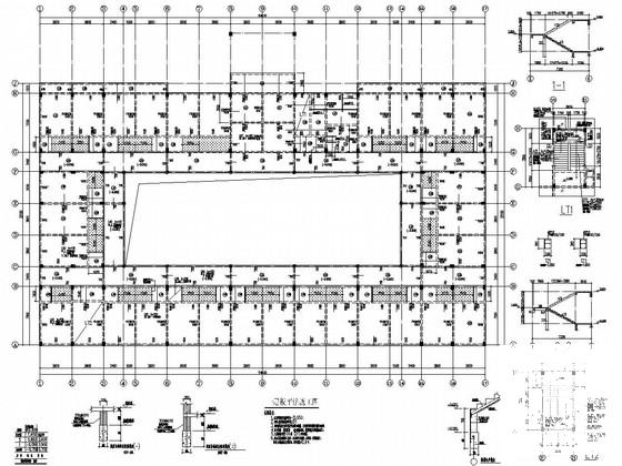
2层框架结构办公楼结构设计施工图柱布置图
- 发布时间:2021-12-04
- 评论次数:0
- 浏览次数:0
- 文件大小:2.49 MB
- 收藏次数:0
-
文件名称:
附件-995888597566855875570.rar
框架结构办公楼设计下载
- 多层办公楼建筑设计(框架结构)
- 混凝土框架结构办公楼设计
- 6层框架结构办公楼设计
- 框架结构办公楼设计说明
- 4层框架结构办公楼毕业设计抗震设计方案
- 框架结构29层酒店办公楼设计方案设计CAD图纸
- 行政办公楼框架结构开题报告
- 办公楼3层框架结构CAD图纸
- 综合办公楼框架结构计算书
- 典型小办公楼框架结构CAD图纸
- 公司钢结构框架结构办公楼结构设计施工图纸
- 钢框架结构驻沪办公楼结构设计施工图纸
- 框架结构办公楼体育活动中心暖通空调设计图纸
- 多层框架结构办公楼结构设计施工图纸
- 3层钢管桁架框架结构厂房办公楼设计施工图纸
- 两层框架结构办公楼结构设计施工图纸
- 公司5层框架结构办公楼毕业设计方案图纸
- 多层钢框架结构商场办公楼结构设计施工图纸
- 框架结构办公楼结构设计施工图纸(独立基础)
- 3465平米框架结构办公楼毕业设计方案
全部评论
评论网友评论仅友表达个人看法,并不表明本站同意其观点,不得发布违反法律法规的内容!
