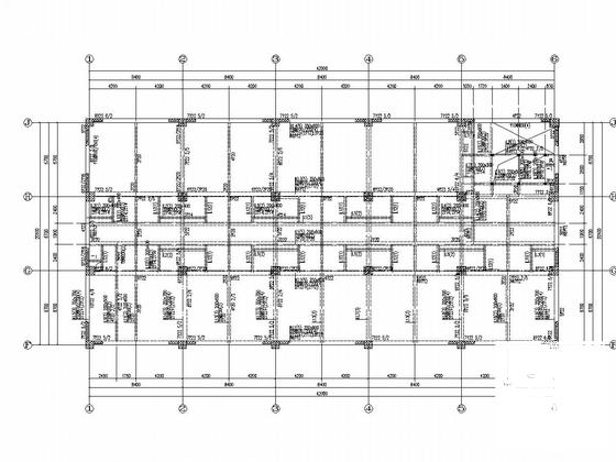
16层框架剪力墙结构酒店商业综合体结构施工图纸
- 发布时间:2021-12-04
- 评论次数:0
- 浏览次数:0
- 文件大小:4.29 MB
- 收藏次数:0
-
文件名称:
附件-995888586779558587580.rar
剪力墙结构酒店下载
- 16层框架剪力墙结构酒店商业综合体结构CAD施工图纸(CFG桩)
- 高层框架剪力墙结构酒店办公综合体建筑施工图纸.
- 商业酒店综合体电气施工图纸
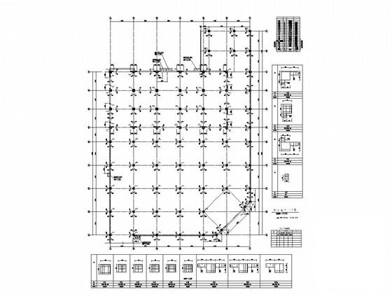
- 48层框架核心筒结构商业综合体结构施工图纸
- 48层框架核心筒结构商业综合体结构CAD施工图纸
- 知名商业综合体消防系统施工CAD图纸(写字楼商业地下)(框架剪力墙结构)(TN-S)
- 商业综合体
- 框架商业综合体项目工程结构设计说明
- 框架商业综合体项目工程结构设计说明.dwg
- 现代塔式办公酒店住宅商业综合体施工图纸(CAD)
- 38层超高层商业办公综合体建筑CAD图纸(框架剪力墙,现代更高)
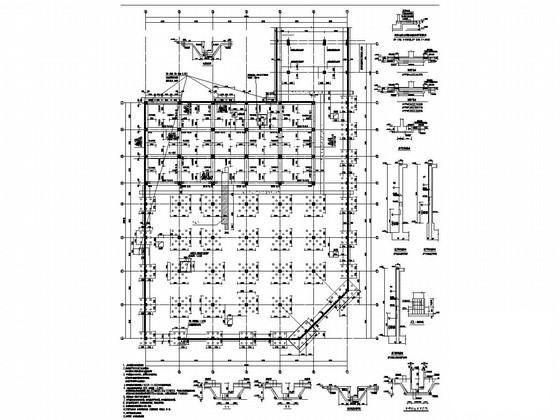
- 23层框架剪力墙结构商业楼结构CAD施工图纸
- 框架剪力墙结构酒店地下车库结构设计施工图纸
- 18层框架剪力墙结构快捷酒店结构施工图纸
- 26层框架剪力墙结构酒店式公寓结构施工图纸
- 17层框架抗震剪力墙结构公寓式酒店结构施工图纸
- 21层框架剪力墙结构酒店结构设计施工图纸
- 11层框架剪力墙结构酒店结构施工图纸平面图
- 21层框架剪力墙结构酒店结构CAD施工图纸(带旋转餐厅)
- 38层现代城商业综合体-酒店方案.dwg
全部评论
评论网友评论仅友表达个人看法,并不表明本站同意其观点,不得发布违反法律法规的内容!
