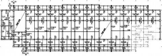
地上5层框架门诊楼结构施工图纸
- 发布时间:2021-12-04
- 评论次数:0
- 浏览次数:0
- 文件大小:0.59 MB
- 收藏次数:0
- 
								文件名称: 附件-995876867757895057095.rar 附件-995876867757895057095.rar
								相关下载
							
						- 地上7层框架结构门诊住院综合楼结构施工图纸
- 地上5层框架结构门诊楼结构施工图纸
- 医院框架门诊楼结构CAD施工图纸
- 5层框架门诊楼结构CAD施工图纸
- 框架门诊楼结构设计说明
- 框架门诊楼结构设计说明.dwg
- 【城市地上9层中医院门诊楼给排水施工图纸
- 框架结构医院门诊楼结构设计施工图纸
- 5层框架结构医院门诊楼结构施工图纸
- 县级5层框架结构门诊楼结构设计施工图纸
- 2层框架结构门诊楼结构施工图纸
- 5层框架结构门诊楼结构CAD施工图纸
- 县级市框架结构独立门诊楼建筑施工CAD图纸
- 框架结构4层医院发热门诊楼建筑施工CAD图纸
- 8层框架门诊楼结构设计CAD施工图纸
- 中医院门诊楼框架结构CAD施工图纸
- 5层县级门诊楼框架结构CAD施工图纸
- 3层医院框架结构门诊楼施工方案大样图(CAD)
- 地上4层混凝土框架结构办公楼楼结构施工图纸
- 地上5层框架结构商业办公楼地上部分结构施工图纸
全部评论
						
							评论网友评论仅友表达个人看法,并不表明本站同意其观点,不得发布违反法律法规的内容!
						
						
 
	              	 
	              	 
	              	