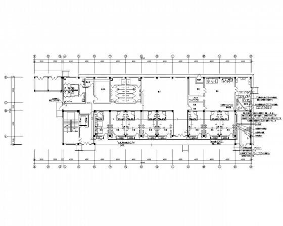
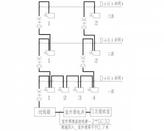
2545平米3层敬老院综合楼强弱电施工图纸
- 发布时间:2021-11-23
- 评论次数:0
- 浏览次数:0
- 文件大小:2.7 MB
- 收藏次数:0
-
文件名称:
附件-995856079889809586755.rar
综合楼弱电下载
- 3层敬老院综合楼强弱电施工图纸(新火规)
- 敬老院暖通施工图纸
- 综合楼强弱电CAD图纸(消防联动)()
- 6层综合楼强弱电图纸.
- 4层中心敬老院及综合楼给排水消防CAD施工图纸
- 4层中心敬老院及综合楼给排水消防CAD施工图纸(室外消火栓系统)
- 6层迁安市中心敬老院综合楼建筑方案设计CAD施工图纸
- 海4层敬老院空调施工图纸
- 3层敬老院大楼电气施工图纸
- 敬老院建筑结构CAD施工图纸
- 医疗卫生综合楼强弱电施工图纸64张
- 卫生局综合楼强弱电系统电气CAD施工图纸
- 5层酒店综合楼强弱电CAD施工图纸(电视监控系统)
- 8层大型通信综合楼强弱电电气CAD施工图纸()
- 9层大学生综合楼强弱电CAD施工图纸
- 7层医院门诊住院综合楼强弱电CAD施工图纸
- 8层医院综合楼强弱电CAD施工图纸
- 多层酒店综合楼强弱电CAD施工图纸
- 12层医院综合楼强弱电系统电气CAD施工图纸
- 社区综合楼强弱电CAD施工图纸.dwg
全部评论
评论网友评论仅友表达个人看法,并不表明本站同意其观点,不得发布违反法律法规的内容!
