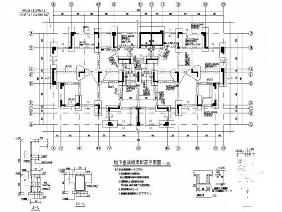
18层剪力墙结构住宅楼结构施工图平面图立面图
- 发布时间:2021-12-03
- 评论次数:0
- 浏览次数:0
- 文件大小:2.84 MB
- 收藏次数:0
- 
								文件名称: 附件-995888578778957787068.rar 附件-995888578778957787068.rar
								剪力墙结构住宅立面图下载
							
						- 剪力墙住宅结构CAD图纸
- 26层剪力墙结构住宅
- 框架剪力墙结构医疗中心承重支模架施工方案(50页),立面图
- 剪力墙住宅结构住宅结构设计方案CAD施工图纸
- 框架剪力墙住宅结构CAD施工图纸
- 高层剪力墙住宅楼结构优化设计
- 高层剪力墙住宅结构CAD施工图纸
- 框架剪力墙住宅部分结构CAD图纸
- 框架剪力墙住宅结构CAD图纸
- 高层剪力墙住宅结构CAD施工图纸
- 26层剪力墙住宅结构CAD图纸
- 18层剪力墙住宅结构CAD图纸
- 高层剪力墙住宅结构CAD图纸
- 14层剪力墙住宅结构图纸
- 剪力墙住宅结构设计CAD图纸
- 剪力墙住宅结构设计CAD图纸
- 剪力墙住宅结构设计CAD图纸
- 剪力墙住宅结构CAD施工图纸
- 剪力墙结构住宅节点CAD图纸集
- 15层剪力墙住宅结构CAD图纸
全部评论
						
							评论网友评论仅友表达个人看法,并不表明本站同意其观点,不得发布违反法律法规的内容!
						
						
 
	              	 
	              	 
	              	 
	              	 
	              	