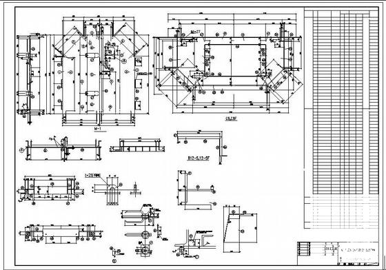
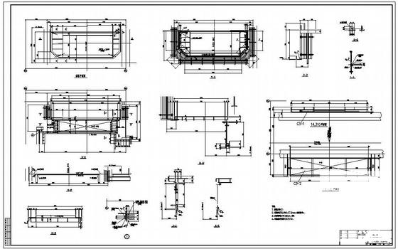
薄板坯连铸连轧工程二冷室钢结构深化设计图纸
- 发布时间:2021-12-03
- 评论次数:0
- 浏览次数:0
- 文件大小:4.84 MB
- 收藏次数:0
-
文件名称:
附件-995878785567058909855.rar
钢结构图纸深化设计下载
- 钢结构彩钢房深化设计
- 体育馆钢结构深化设计图纸
- 钢结构厂房深化设计节点构造CAD详图纸
- 国内客运枢纽钢结构深化设计CAD图纸
- 客运枢纽钢结构深化设计图纸.dwg
- 大学体育馆钢结构深化设计
- 钢结构厂房深化设计节点构造CAD详图纸.dwg
- 中心大厦钢结构深化设计难点分析(钢板剪力墙)
- 装配式钢结构建筑的深化设计分析
- 4层体育馆钢结构深化设计CAD施工大样图
- 世博会馆弱电深化设计图纸
- 钢桁架结构深化设计CAD图纸
- 滨河水道一河两岸深化设计深化
- 预制楼梯深化设计说明2018
- 校园景观规划方案深化设计
- 软件园景观方案深化设计
- 地下夹层钢结构自行车车库翻样深化图纸
- 大学体育馆钢结构深化设计CAD图纸(高30米)(平面布置图)
- 4层体育馆钢结构深化设计CAD施工图纸(平面布置图)
- 地下夹层钢结构自行车车库翻样深化CAD图纸(民用建筑设计)
全部评论
评论网友评论仅友表达个人看法,并不表明本站同意其观点,不得发布违反法律法规的内容!
