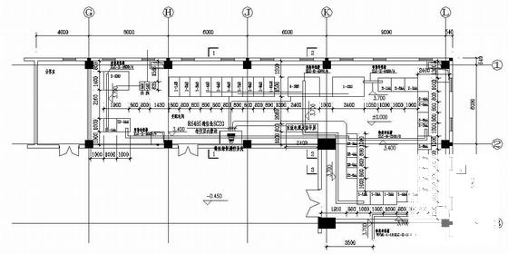
国内度假村变配电间电气施工图纸
- 发布时间:2021-12-03
- 评论次数:0
- 浏览次数:0
- 文件大小:0.68 MB
- 收藏次数:0
- 
								文件名称: 附件-995857888797595550958.rar 附件-995857888797595550958.rar
								电气配电图纸下载
							
						- 国内度假村温室大棚消防电气CAD图纸
- 水质净化厂变配电间电气设计施工图纸
- 变配电室电气CAD图纸
- 国内43246平米地上5层研发楼变配电室施工图纸
- 国内工程变配电设备安装施工方案(符合规范要求)
- 国内2层住宅小区样板间电气设计
- 度假村电气平面CAD图纸
- 建筑变配电工程电气施工图纸
- 宾馆变配电房电气施工图纸
- 冷轧车间电气CAD施工图纸(变配电系统)
- 医院变配电房电气CAD施工图纸
- 变配电室全套电气CAD施工图纸
- 污水厂110KV变配电间改造节点构造详图纸
- 度假村独立别墅电气设计
- 2层度假村别墅电气设计.dwg
- 菜市场变配电房电气CAD图纸
- 车间变配电室电气CAD图纸
- 电气间大样CAD图纸
- 3层度假村装修电气设计施工图纸
- 3层度假村装修电气CAD施工图纸
全部评论
						
							评论网友评论仅友表达个人看法,并不表明本站同意其观点,不得发布违反法律法规的内容!
						
						
 
	              	 
	              	 
	              	