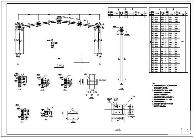
18米门式刚架厂房结构设计施工图纸
- 发布时间:2021-11-30
- 评论次数:0
- 浏览次数:0
- 文件大小:0.14 MB
- 收藏次数:0
- 
								文件名称: 附件-995878799687085069758.rar 附件-995878799687085069758.rar
								门式刚架厂房设计下载
							
						全部评论
						
							评论网友评论仅友表达个人看法,并不表明本站同意其观点,不得发布违反法律法规的内容!
						
						 附件-995878799687085069758.rar
 附件-995878799687085069758.rar