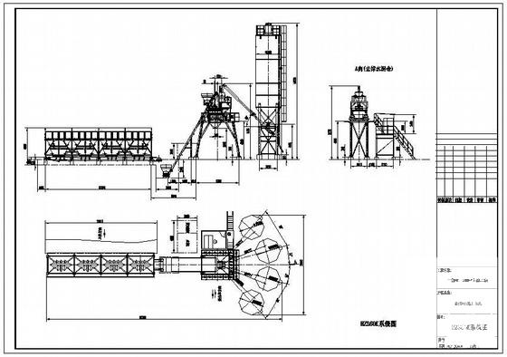
混凝土搅拌站全套结构设计图纸(5张图纸)
- 发布时间:2021-11-30
- 评论次数:0
- 浏览次数:0
- 文件大小:7.65 MB
- 收藏次数:0
-
文件名称:
附件-995877809675597556855.rar
混凝土搅拌站设计下载
- 混凝土搅拌站设计CAD图纸
- 混凝土搅拌站基础设计CAD图纸
- 混凝土搅拌站基础设计CAD图纸
- HZS120型混凝土搅拌站CAD图纸
- 混凝土搅拌站设计图纸.dwg
- 混凝土搅拌站结构CAD施工图纸.dwg
- HZS120型混凝土搅拌站cad图纸
- 混凝土搅拌站节点构造详图纸cad
- 混凝土搅拌站结构设计方案CAD图纸
- 混凝土剪力墙搅拌站和水池结构设计方案CAD图纸
- 混凝土厂搅拌站结构CAD图纸,共7张(dwg)
- 搅拌站桩基础混凝土结构CAD施工方案图纸()
- 京沪高速铁路混凝土搅拌站地基CAD图纸
- 沥青混凝土搅拌站平面布置示意CAD图纸
- 搅拌站结构详图纸
- 混凝土搅拌站结构CAD施工大样图
- C25混凝土铁路工程搅拌站设计施工图
- 水泥搅拌站结构设计施工图纸,共11张
- 水泥搅拌站结构设计CAD施工图纸
- 搅拌站结构设计CAD施工图纸.dwg
全部评论
评论网友评论仅友表达个人看法,并不表明本站同意其观点,不得发布违反法律法规的内容!
