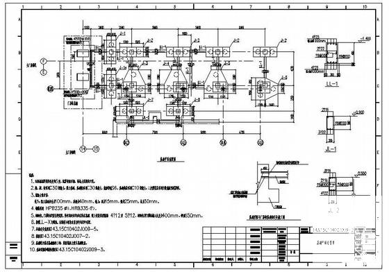
江阴炼钢工程2#RH电气室结构施工图纸
- 发布时间:2021-11-30
- 评论次数:0
- 浏览次数:0
- 文件大小:0.84 MB
- 收藏次数:0
-
文件名称:
附件-995878756689588866767.rar
工程结构图纸下载
- 江阴炼钢工程2#RH料仓基础及变压器室结构CAD施工图纸
- 江阴炼钢工程2#RH精炼系统设备基础CAD施工图纸
- 江阴炼钢工程1#RH电气室结构CAD施工图纸
- 炼钢工程2#RH料仓基础及变压器室结构施工图纸
- 江阴炼钢工程1#RH料仓基础及变压器室结构CAD施工图纸
- 炼钢工程2#RH炼系统设备基础施工图纸
- 江阴炼钢工程1#RH精炼系统设备基础CAD施工图纸
- 炼钢工程1#RH料仓基础及变压器室结构施工图纸
- 转炉炼钢工程水池结构设计CAD图纸
- 炼钢工程转炉汽化冷却配管施工方案
- 炼钢工程铁水预处理设备安装施工方案
- 炼钢工程除尘系统设备安装施工方案
- 炼钢技术厂区电气设计CAD施工图纸
- 炼钢技术厂区电气CAD施工图纸(配电系统)
- 江阴别墅建筑CAD图纸
- 转炉炼钢工程水池节点构造CAD详图纸.dwg
- 医院电缆分界室工程电气图纸
- 转炉炼钢工程水池结构设计图纸(7张图纸)
- 特钢转炉炼钢工程屋面结构设计图纸
- 炼钢厂平台结构CAD施工图纸
全部评论
评论网友评论仅友表达个人看法,并不表明本站同意其观点,不得发布违反法律法规的内容!
