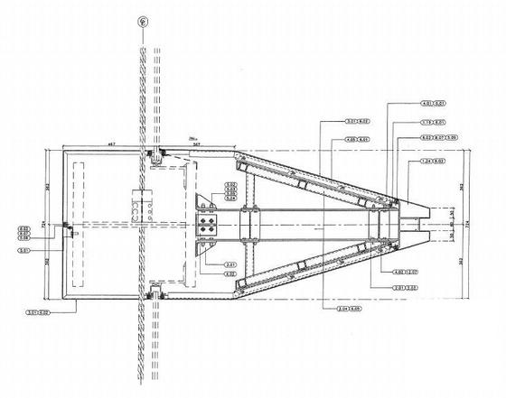
25层大厦工程玻璃幕墙、索网幕墙盖板、雨篷盖板及灯箱部分设计施工图纸
- 发布时间:2021-11-30
- 评论次数:0
- 浏览次数:0
- 文件大小:5.47 MB
- 收藏次数:0
- 
								文件名称: 附件-995877795865958788575.rar 附件-995877795865958788575.rar
								玻璃雨篷施工图下载
							
						- 25层大厦工程玻璃幕墙,索网幕墙盖板,雨篷盖板及灯箱部分设计施工图纸.
- 餐厅玻璃幕墙及轻钢雨篷设计节点构造详细CAD图纸
- 餐厅玻璃幕墙及轻钢雨篷设计节点构造详细CAD图纸
- 大厦钢结构雨篷工程CAD施工图纸
- 斜盖板施工CAD图纸(钢筋混凝土盖板涵盖板构造图纸)
- 国内大厦索网幕墙施工方案(质量保证措施)
- 物流中心联合工房玻璃幕墙、玻璃雨篷CAD施工图纸
- 钢筋混凝土盖板涵盖板构造CAD图纸
- 树池及盖板节点详细设计CAD图纸
- 道路盖板涵图纸
- 玻璃雨篷及内天井雨篷结构施工方案图纸
- 大厦钢结构雨篷工程施工图纸(10张图).dwg
- 铪暗盖板涵矩形盖板构造节点详细CAD图纸设计
- 湖北道路盖板涵设计图纸_盖板整体式基础
- 钢结构雨篷幕墙CAD施工图纸及软件计算书
- 研发基地幕墙、雨篷、门窗工程设计大样图
- 平面玻璃幕墙部分节点
- 拉索点式玻璃幕墙施工工艺
- 钢结构雨篷铝单板幕墙节点图纸
- 大厦玻璃幕墙施工方案
全部评论
						
							评论网友评论仅友表达个人看法,并不表明本站同意其观点,不得发布违反法律法规的内容!
						
						
 
	              	 
	              	 
	              	