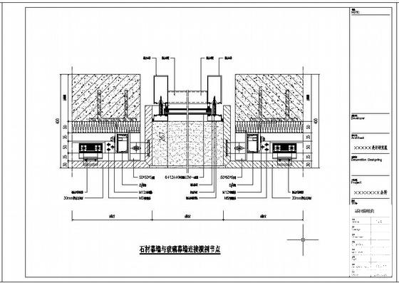
会所幕墙结构设计大样图(计算书)
- 发布时间:2021-11-29
- 评论次数:0
- 浏览次数:0
- 文件大小:6.2 MB
- 收藏次数:0
- 
								文件名称: 附件-995877675998098700788.rar 附件-995877675998098700788.rar
								结构设计计算书下载
							
						- 石材幕墙计算书
- 小区大门石材幕墙结构设计施工大样图(计算书)
- 15层大厦幕墙工程结构设计施工大样图(计算书)
- 办公楼石材幕墙计算书
- 5层办公楼玻璃幕墙工程CAD施工大样图(幕墙计算书节能计算书)
- 框架高层商住楼幕墙结构设计施工大样图(计算书)
- 3层幼儿园幕墙结构设计施工大样图(计算书)
- 商用幕墙设计CAD施工图纸(结构计算书)
- 文化城全隐框幕墙设计计算书
- 医院综合楼单层铝板幕墙计算书
- 医院综合楼石材幕墙计算书
- 国内大厦高层石材幕墙工程计算书
- 国内国际公寓石材幕墙工程计算书
- 幕墙计算书(主要有风荷载)
- 3层国投商业中心幕墙施工大样图(计算书)
- 9层办公楼幕墙工程设计施工大样图(计算书)
- 福彩中心营业楼幕墙设计大样图(计算书)
- 公寓楼幕墙工程设计大样图(计算书)
- 酒店石材幕墙施工方案大样图含计算书
- 框剪结构综合楼幕墙工程计算书(玻璃幕墙、石材幕墙)
全部评论
						
							评论网友评论仅友表达个人看法,并不表明本站同意其观点,不得发布违反法律法规的内容!
						
						
 
	              	 
	              	 
	              	