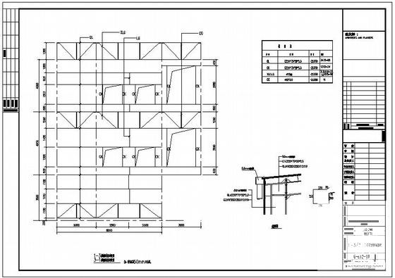
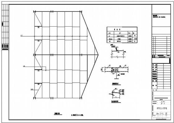
7.5米马术场裁判所钢结构设计施工图纸
- 发布时间:2021-11-29
- 评论次数:0
- 浏览次数:0
- 文件大小:0.99 MB
- 收藏次数:0
- 
								文件名称: 附件-995878896990688800900.rar 附件-995878896990688800900.rar
								钢结构设计施工图纸下载
							
						- 钢结构施工详图纸设计方法.
- 单层钢结构厂房设计施工图纸(钢结构设计说明)
- 钢结构施工设计说明.dwg
- 水中墩钢结构平台设计CAD施工图纸(钢结构).dwg
- 钢结构设计之钢结构连接.pdf
- 宾馆屋顶钢结构设计图纸(钢结构设计说明)
- 钢结构课程设计
- 重型机床公司钢结构厂房设计施工图纸
- 钢结构小车库设计施工图纸
- 独立基础钢结构雨篷设计施工图纸
- 钢结构3层平台设计施工图纸
- 工程钢结构加固设计施工图纸
- 3层钢结构厂房设计施工图纸
- 小学大门钢结构设计施工图纸
- 家装钢结构平台设计施工图纸
- 钢结构人行天桥设计施工图纸
- 钢结构雨棚结构设计施工图纸
- 钢结构仓库结构设计施工图纸
- 钢结构车间强电设计CAD施工图纸(dwg)
- 复杂钢结构楼梯设计CAD施工图纸()
全部评论
						
							评论网友评论仅友表达个人看法,并不表明本站同意其观点,不得发布违反法律法规的内容!
						
						
 
	              	 
	              	 
	              	