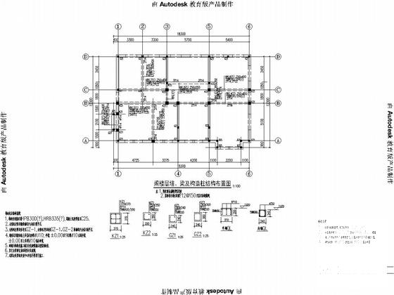
3层砌体结构别墅结构设计施工图纸
- 发布时间:2021-11-28
- 评论次数:0
- 浏览次数:0
- 文件大小:1.76 MB
- 收藏次数:0
- 
								文件名称: 附件-995879588756875985578.rar 附件-995879588756875985578.rar
								别墅结构设计图纸下载
							
						- 砌体别墅结构设计CAD施工图纸
- 砌体结构别墅结构设计CAD图纸
- 3层砌体别墅结构设计CAD图纸
- 两层砌体结构别墅结构设计CAD施工图纸.dwg
- 两层砌体结构别墅结构设计CAD施工图纸.dwg
- 3层砌体结构别墅结构设计CAD施工图纸.dwg
- 砌体结构联排别墅结构设计CAD施工图纸(条形基础).dwg
- 砌体结构别墅建筑和结构CAD施工图纸
- 2层砌体结构别墅结构CAD施工图纸
- 2层砌体结构别墅结构CAD施工图纸
- 4层砌体结构别墅结构CAD施工图纸
- 砌体结构别墅结构CAD施工图纸.dwg
- 2层5套砌体混合别墅结构设计施工图纸(条形基础)
- 2层砌体别墅结构设计方案CAD施工图纸
- 2层5套砌体混合别墅结构设计CAD施工图纸
- 3层砌体别墅结构设计CAD施工图纸
- 2层砌体别墅结构设计CAD施工图纸
- 砌体别墅结构设计CAD施工图纸.dwg
- 2层砌体别墅结构设计CAD施工大样图
- 3层砌体结构别墅建筑施工CAD图纸
全部评论
						
							评论网友评论仅友表达个人看法,并不表明本站同意其观点,不得发布违反法律法规的内容!
						
						
 
	              	 
	              	 
	              	 
	              	 
	              	