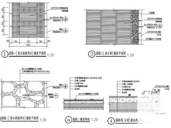
城市遗址公园园林景观工程施工图纸
- 发布时间:2021-11-27
- 评论次数:0
- 浏览次数:0
- 文件大小:1.92 MB
- 收藏次数:0
-
文件名称:
附件-995878870906668557785.rar
城市园林景观施工下载
- 小型公园园林景观工程施工CAD图纸
- 护城河遗址公园绿化施工CAD图纸
- 滨水公园园林景观工程施工图纸
- 公园入口广场园林景观工程施工CAD图纸
- 一套城市公园园林景观工程CAD施工图纸
- 社区公园园林景观工程施工大样图
- 大明宫国家遗址公园方案深化设计及阶段性总结
- 城市儿童室外活动广场园林景观工程施工CAD图纸
- 城市游园园林景观工程施工大样图
- 城市休闲广场园林景观工程施工CAD大样图
- 带状公园园林景观设计施工图纸
- 公园园林景观工程全套施工CAD图纸
- 休闲公园园林景观施工CAD图纸
- 遗址博物馆给排水图纸
- 宾馆庭院园林景观工程施工图纸
- 校园园林景观工程施工CAD图纸
- 校园园林景观工程施工CAD图纸
- 商住社区园林景观工程施工CAD图纸
- 故居遗址景观改造CAD施工图纸.dwg
- 遗址博物馆给排水设计CAD图纸.dwg
全部评论
评论网友评论仅友表达个人看法,并不表明本站同意其观点,不得发布违反法律法规的内容!
