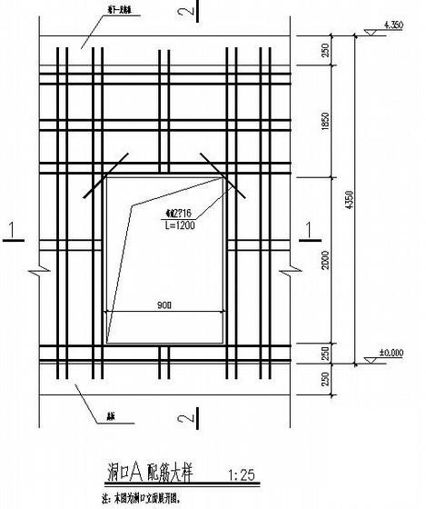
银行新增剪力墙结构施工图纸(设计说明)
- 发布时间:2021-11-26
- 评论次数:0
- 浏览次数:0
- 文件大小:0.2 MB
- 收藏次数:0
-
文件名称:
附件-995877805088058785056.rar
银行设计图纸下载
- 银行新增剪力墙结构设计说明
- 银行新增剪力墙结构设计说明.dwg
- 厂房新增架空阁楼结构设计说明
- 新增剪力墙大样节点构造详图纸
- 3层框架教学楼新增钢结构设计说明
- 3层框架教学楼新增钢结构设计说明.dwg
- 厂房新增架空阁楼结构设计说明.dwg
- 车间新增钢结构平台结构CAD施工图纸
- 大厦新增钢结构平台(详施工图纸)
- 原结构新增观光电梯加固施工图纸
- 新增室外钢楼梯结构CAD施工图纸
- 原结构新增钢楼梯设计CAD施工图纸
- 新增水池结构CAD施工方案图纸
- 临时变电站新增结构CAD施工图纸
- 仓库新增风井改造及屋面新增风机架改造CAD施工图纸(爬梯)
- 银行大厦结构设计PPT
- 新增抗震墙设计说明及节点构造CAD详图纸
- 银行大门改造结构CAD施工图纸
- 17层民生银行建筑CAD图纸(框架剪力墙)
- 新增构造柱加固说明
全部评论
评论网友评论仅友表达个人看法,并不表明本站同意其观点,不得发布违反法律法规的内容!
