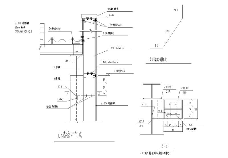
钢结构山墙檐口节点详图纸
- 发布时间:2022-02-20
- 评论次数:0
- 浏览次数:0
- 文件大小:0.05 MB
- 收藏次数:0
-
文件名称:
附件-996565696580968507.zip
相关下载
- 山墙檐口直爬梯节点构造详图纸cad
- 钢结构山墙节点详图纸
- 钢结构节点之檐口节点
- 钢结构节点之檐口节点
- 坡屋面檐口节点构造CAD详大样图
- 山墙封檐及侧墙檐口节点详图纸版
- 钢结构山墙封檐节点构造CAD详图纸
- 钢结构山墙封檐节点构造CAD详图纸
- 钢结构构造详细设计CAD图纸(檐口节点)
- 山墙泛水节点详图纸
- 檐口节点CAD图纸
- 檐口大样节点详图纸
- 山墙节点构造CAD详图纸
- 山墙节点构造CAD详图纸
- 钢结构节点精选之网架墙面、檐口、雨篷等节点详图纸
- 钢结构节点选之网架墙面、檐口、雨篷等节点CAD详图纸.dwg
- 钢结构节点构造设计详图,柱脚,牛腿,刚架檐口节点图
- 煤仓钢结构节点构造详施工图纸
- 钢结构烟囱节点CAD详施工图纸
- 铝单板檐口构件节点图纸2018
全部评论
评论网友评论仅友表达个人看法,并不表明本站同意其观点,不得发布违反法律法规的内容!
