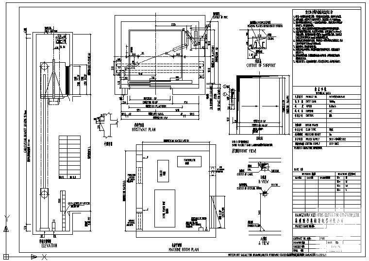
液压梯节点构造详图纸_HY21F-1600-左开
- 发布时间:2022-02-20
- 评论次数:0
- 浏览次数:0
- 文件大小:0.04 MB
- 收藏次数:0
-
文件名称:
附件-996057688958555079.rar
液压梯节点构造图下载
- HY21F-1000-右开液压梯节点构造详图纸
- 液压梯节点构造详图纸_HY21F-1000-左开
- 液压梯节点构造详图纸_HY21F-1600-右开
- 液压梯节点构造详图纸_HY21F-2000-右开
- 液压梯节点构造详图纸_HY21F-2000-左开
- 液压梯节点构造详图纸_HY21P-1000(E)-左
- 液压梯节点构造详图纸_HY21P-1250(E)-左
- 液压梯节点构造详图纸_HY21P-1600(E)-左
- 液压梯节点构造详图纸_HY21P-800(E)-左
- 观光梯基础节点构造详图纸剖面图
- 货梯、菜梯配筋节点构造详图纸
- 医梯节点构造详图纸
- 货梯节点构造设计详图纸
- 货梯节点设计构造详图纸
- 货梯节点构造详图纸
- 钢梯节点构造CAD图集(预埋件)
- 钢梯节点构造CAD图纸集
- XO-STAR客梯1000-2.5节点构造设计图
- XO-STAR客梯1000-2.5节点构造图
- D型板式楼梯梯板节点构造详图纸
全部评论
评论网友评论仅友表达个人看法,并不表明本站同意其观点,不得发布违反法律法规的内容!
