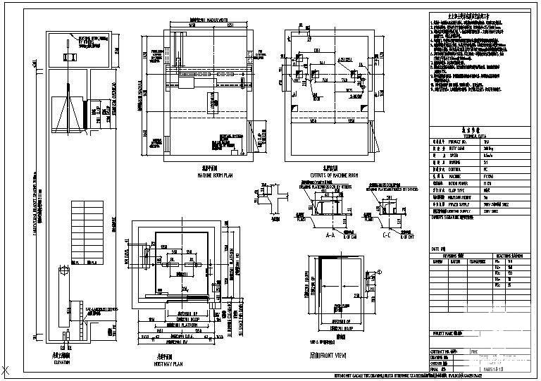
THJ2000R货梯节点构造设计详图纸
- 发布时间:2022-02-20
- 评论次数:0
- 浏览次数:0
- 文件大小:0.05 MB
- 收藏次数:0
-
文件名称:
附件-996057670599665855.rar
货梯节点构造图下载
- 货梯节点构造设计详图纸
- 货梯节点设计构造详图纸
- 货梯节点构造详图纸
- 货梯、菜梯配筋节点构造详图纸
- 货梯节点构造详图纸_FO500R
- 货梯节点构造详图纸_THJ5000
- 货梯节点构造详图纸(FO2000L)
- FO3000货梯节点构造详图纸
- FO4000货梯节点构造设计详图纸
- FO4000货梯节点构造详图纸
- FO5000货梯节点构造详图纸
- FO500L货梯节点构造详图纸
- FOVF1000L货梯节点构造详图纸
- FOVF1000R货梯节点构造详图纸
- FOVF2000R货梯节点构造详图纸
- FOVF4000货梯节点构造设计详图纸
- FOVF5000货梯节点构造详图纸
- THJ4000货梯节点构造设计详图纸
- TQJ3000JXW货梯节点构造详图纸
- TQJ3000VF货梯节点构造详图纸
全部评论
评论网友评论仅友表达个人看法,并不表明本站同意其观点,不得发布违反法律法规的内容!
