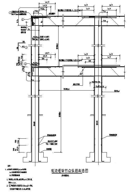
现浇非抗震框架节点纵筋节点构造设计详图
- 发布时间:2022-02-20
- 评论次数:0
- 浏览次数:0
- 文件大小:0.03 MB
- 收藏次数:0
-
文件名称:
附件-996058595859089998.rar
现浇框架节点箍筋图下载
- 现浇框架节点箍筋构造详图纸cad
- 现浇框架节点箍筋节点构造设计图
- 现浇框架梁、柱箍筋配置构造详图纸
- 现浇框架节点箍筋节点构造详图纸
- 现浇框架节点箍筋节点构造详设计图
- 框架柱纵筋锚固及箍筋加密的节点构造详图纸要求
- 非抗震KL、WKL箍筋、附加箍筋、吊筋等节点构造详图纸
- 剪力墙节点设计CAD图纸(箍筋构造)
- 框架梁、柱配筋表(体积配箍率)
- 圆柱纵向钢筋的配筋和箍筋的体积配箍率选用表
- 三级抗震等级现浇框架箍筋节点构造详图纸
- 芯柱配筋构造矩形箍筋复合形式
- 附加吊筋和箍筋详图纸
- 配筋构造矩形箍筋复合形式节点构造详图纸
- 抗震KZ、QZ、LZ箍筋加密区范围圆柱螺旋箍筋节点构造详图纸
- 一级抗震等级KL、WKL箍筋、附加箍筋、吊筋等节点构造设计详图纸
- 非抗震KL、WKL箍筋、附加箍筋、吊筋等构造节点详图纸cad
- 矩形柱纵向钢筋的配筋和箍筋的体积配箍率选用表
- 构造边缘构件纵向钢筋的配筋率和箍筋的体积配箍率选用表
- 约束边缘构件纵向钢筋的配筋率和箍筋的体积配箍率选用表
全部评论
评论网友评论仅友表达个人看法,并不表明本站同意其观点,不得发布违反法律法规的内容!
