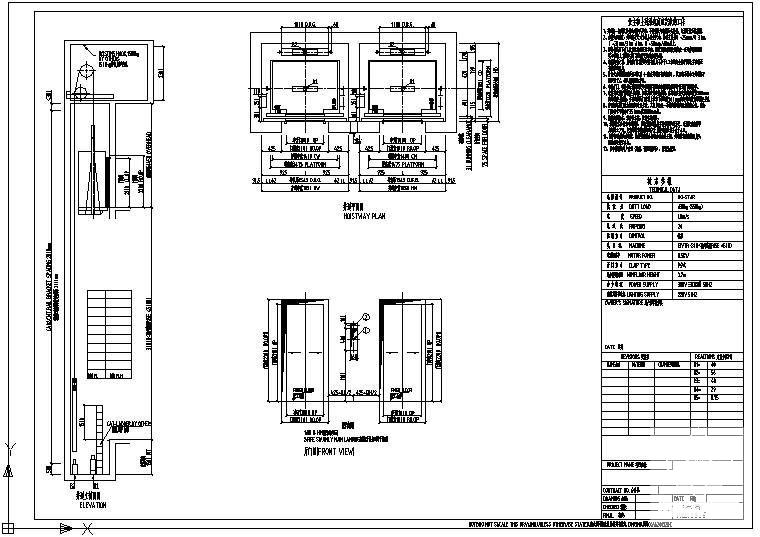
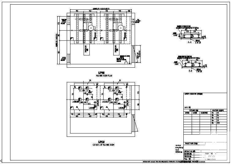
XO-STAR两台并联客梯630-1.0(50M)节点构造详图纸
- 发布时间:2022-02-20
- 评论次数:0
- 浏览次数:0
- 文件大小:0.06 MB
- 收藏次数:0
-
文件名称:
附件-996056767588905066.rar
客梯节点构造图下载
- XO-STAR客梯1000-2.5节点构造设计图
- XO-STAR客梯1000-2.5节点构造图
- XO-STAR客梯680-1.0节点构造详图纸
- XO-STAR客梯680-1.5节点构造详图纸
- XO-STAR客梯680-1.75节点构造详图纸
- XO-STAR客梯800-1.0节点构造详图纸
- XO-CLASS客梯-1350-1.75节点构造详图纸
- XO-CLASS客梯-1350-2.0节点构造设计详图纸
- XO-CLASS客梯-1350-2.0节点构造详图纸
- XO-CLASS客梯-1350-2.5节点构造设计详图纸
- XO-CLASS客梯-1350-2.5节点构造详图纸
- XO-CLASS客梯-900-1.0节点构造设计详图纸
- XO-CLASS客梯-900-1.0节点构造详图纸
- XO-CLASS客梯-900-1.5节点构造设计详图纸
- XO-CLASS客梯-900-1.5节点构造详图纸
- XO-CLASS客梯-900-1.75节点构造设计详图纸
- XO-CLASS客梯-900-1.75节点构造详图纸
- XO-STAR客梯1000-1.0节点构造设计详图纸
- XO-STAR客梯1000-1.0节点构造详图纸
- XO-STAR客梯1000-1.5节点构造设计详图纸
全部评论
评论网友评论仅友表达个人看法,并不表明本站同意其观点,不得发布违反法律法规的内容!
