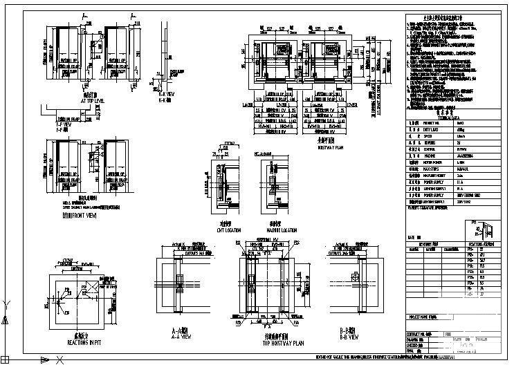
630-D800-1.0-左-并联电梯节点构造详图纸
- 发布时间:2022-02-20
- 评论次数:0
- 浏览次数:0
- 文件大小:0.1 MB
- 收藏次数:0
-
文件名称:
附件-996057677706788657.rar
电梯节点构造图下载
- 楼梯电梯节点构造详图纸表
- 电梯结构节点构造设计详图纸
- 电梯门安装节点构造详图纸
- 电梯节点构造详细设计CAD图纸
- 电梯节点构造详图纸cad
- 电梯节点构造详图纸cad
- 电梯井节点构造详图纸cad
- 防电梯集水坑及电梯基坑节点构造详图纸cad
- OH5000-6301.0并联电梯节点构造详图纸
- 电梯门梁配筋节点构造详图纸
- OH5000-6301.0单电梯节点构造详图纸
- 电梯井坑大样节点构造设计详图纸
- 电梯井钢结构做法节点构造设计详图纸
- 洞口电梯井楼梯防护示意节点构造详图纸
- 外用电梯搭设节点构造详图纸
- 电梯井模板节点构造详图纸(一)
- 电梯井模板节点构造详图纸(二)
- 电梯与自动扶梯大样节点构造详图纸
- 电梯井坑大样节点构造详图纸
- 楼梯电梯节点构造详细设计CAD图纸表
全部评论
评论网友评论仅友表达个人看法,并不表明本站同意其观点,不得发布违反法律法规的内容!
