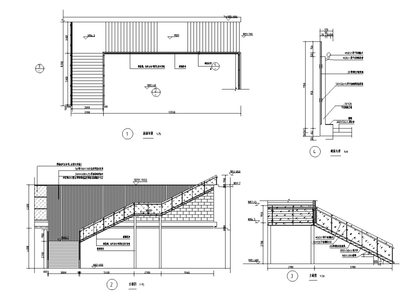
住宅商业区下沉广场钢楼梯节点详图纸设计
- 发布时间:2022-02-20
- 评论次数:0
- 浏览次数:0
- 文件大小:0.46 MB
- 收藏次数:0
- 
								文件名称: 附件-996555589607976895.dwg 附件-996555589607976895.dwg
								下沉广场钢楼梯节点图下载
							
						- 下沉广场施工CAD大样图
- 下沉广场施工CAD大样图
- 下沉广场施工CAD图纸
- 下沉广场照明总平面CAD图纸
- 小区下沉广场设计CAD图纸
- 小区下沉广场设计CAD图纸
- 小区内下沉广场CAD详图纸
- 滨水下沉式广场CAD施工图纸(节点大样图)(dwg)
- 23个钢梯节点详图纸钢爬梯,折楼梯,两跑楼梯图
- 钢楼梯节点构造详图纸大样图
- 钢楼梯大样节点构造详图纸立面图
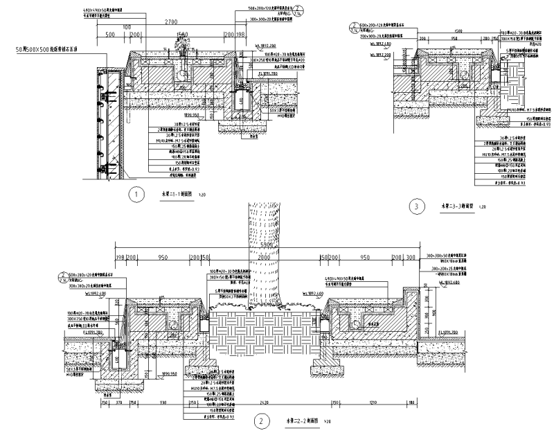
- 下沉式广场与跌水池平面图纸
- 下沉式广场与跌水池平面大样CAD图纸
- 下沉小广场设计CAD大样图纸
- 下沉式广场剖面CAD施工图纸
- 下沉式广场与跌水池设计CAD图纸
- 钢楼梯结构节点构造设计详图
- 钢楼梯结构节点构造详图纸
- 钢楼梯节点构造设计详图纸
- 钢楼梯节点构造详图纸
全部评论
						
							评论网友评论仅友表达个人看法,并不表明本站同意其观点,不得发布违反法律法规的内容!
						
						
 
	              	 
	              	 
	              	