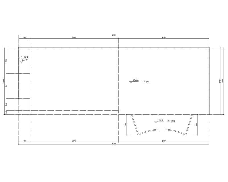
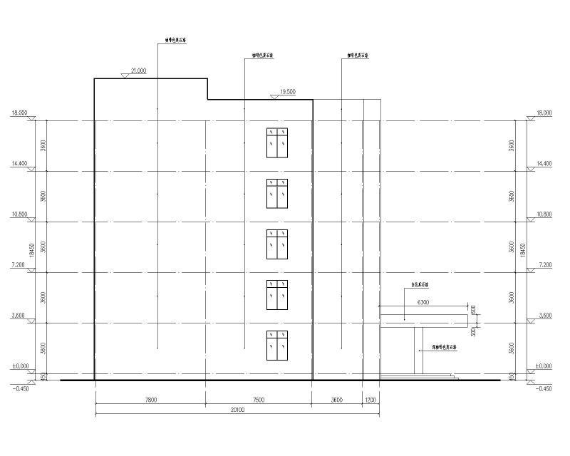
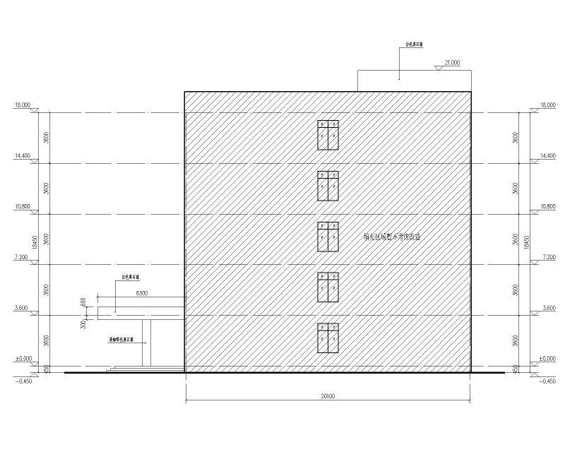
小学教学综合楼扩建施工工程图纸平面图及立面图
- 发布时间:2022-02-20
- 评论次数:0
- 浏览次数:0
- 文件大小:17.28 MB
- 收藏次数:0
-
文件名称:
附件-996556897800908097.rar
小学教学楼扩建施工图下载
- 4层小学扩建项目教学楼电气
- 5层小学教学楼扩建工程电气CAD施工图纸
- 5层小学教学楼扩建工程电气CAD施工图纸
- 小学扩建项目-4层框架教学楼结构CAD施工图纸2019
- 5层小学教学楼改扩建电气施工图纸cad平面图
- 5层小学教学楼改扩建工程电气施工CAD图纸
- 小学扩建项目教学楼建筑施工CAD大样图
- 5层小学扩建楼暖通CAD施工图纸
- 5层小学教学楼及配套扩建电气施工图纸cad平面图
- 小学教学楼电气
- 小学扩建项目-教学综合楼电气
- 小学教学楼CAD图纸
- 3层小学教学楼建筑施工图纸
- 多层小学教学楼加固CAD施工图纸
- 小学教学楼给排水CAD施工图纸
- 小学教学楼给排CAD施工图纸
- 小学综合教学楼电气CAD施工图纸
- 小学教学楼给排水CAD施工图纸
- 框架小学教学楼结构CAD施工图纸
- 小学教学楼电气施工图纸.
全部评论
评论网友评论仅友表达个人看法,并不表明本站同意其观点,不得发布违反法律法规的内容!
