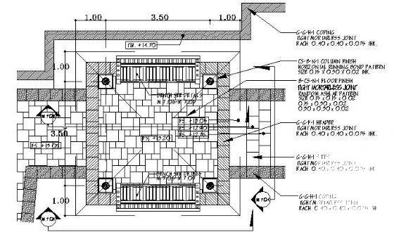
超五星酒店木结构休闲亭平面图及铺装图、基础图
- 发布时间:2021-12-26
- 评论次数:0
- 浏览次数:0
- 文件大小:0.62 MB
- 收藏次数:0
- 
								文件名称: 附件-996007798580577970.rar 附件-996007798580577970.rar
								相关下载
							
						- 超五星酒店木结构休闲亭平面图及顶面图、剖面图
- 超五星酒店木结构休闲亭设计CAD图纸
- 超五星级酒店6种景观亭平面图及节点详图,剖面图
- 特色三联亭施工详图纸立面图及基础图、地面铺装图
- 超五星级酒店E区木质景观亭平面图及立面图、剖面图
- 小区小广场设计详图纸立面图及平面图,铺装图
- 四角凉亭施工详图纸平面图及顶面图,铺装详图
- 林荫花架施工图纸平面图及立面图、剖面图、铺装图
- 老年活动区铺装及张拉膜设计大样平面图及立面图
- 超五星级酒店F区木质景观亭
- 中式凉亭施工详图纸平面图及铺装放样图,剖面图
- 两种花架廊施工图纸平面图及配筋图、顶板详图、铺装图
- 平桥施工详图纸铺装平面图及立面图,配筋图
- 街道铺装详图纸平面图,立面图,剖面图
- 休闲平台施工CAD图纸,含铺装平面
- 四角休闲方亭施工做法详细设计CAD图纸(基础平面图)
- 栈桥及广场铺装详图纸大样图及剖面图
- 四角休闲亭施工图纸平面图及立面图、剖面图
- 坐凳台阶详图纸平面图及剖面图,踏面铺装形式
- 特色铺装小路大样平面图和立面图
全部评论
						
							评论网友评论仅友表达个人看法,并不表明本站同意其观点,不得发布违反法律法规的内容!
						
						
 
	              	