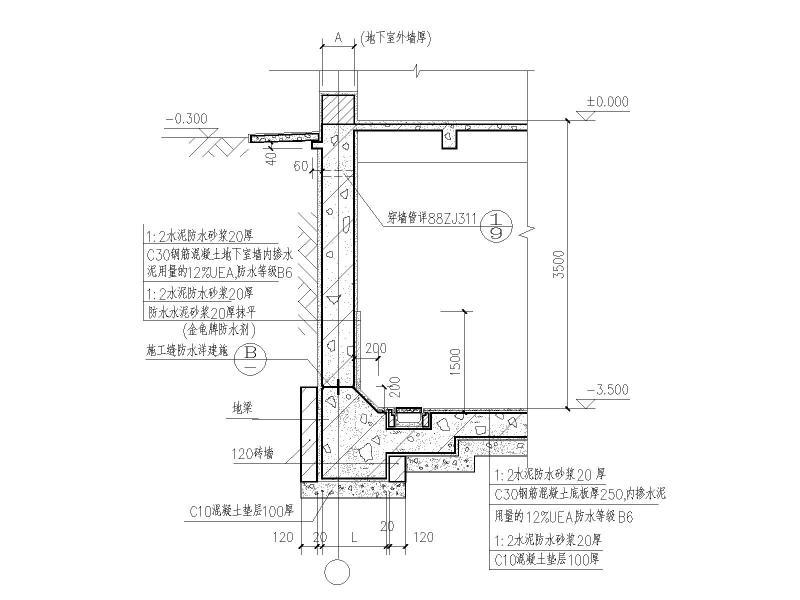
18类地下室防水节点详图大样图纸剖面图
- 发布时间:2021-12-18
- 评论次数:0
- 浏览次数:0
- 文件大小:0.76 MB
- 收藏次数:0
-
文件名称:
附件-996596750970980070.zip
地下室防水大样图下载
- 地下室背水面防水构造
- 地下室屋面卫生间防水节点CAD大样图纸集
- 地下室外墙防水收头CAD大样图纸
- 地下室防水工程监理细则
- 地下室外墙防水构造大样(有岩石部分)
- 人防地下室CAD图纸(刚性防水套管)
- 地下室防水节点CAD详图纸
- 2011版地下室防水CAD图纸集
- 地下室防水设计构造CAD详图纸
- 消防水池结构大样图纸
- 雨棚防水CAD大样图纸
- 外墙防水做法CAD大样图纸
- 水池防水做法CAD大样图纸
- 防水新CAD图集(厨浴厕、地下室、水池、外墙)
- 大厦地下室顶板防水构造节点详细设计CAD图纸
- 28张地下室屋面卫生间防水节点大样
- 地下室架空疏水防水构造(I级设防)
- 地下室外防外涂防水构造CAD图纸(II级设防)
- 底板及地下室外墙防水层做法节点构造详细设计CAD图纸
- 2003版防水新CAD图纸集(厨浴厕、地下室、水池、外墙)
全部评论
评论网友评论仅友表达个人看法,并不表明本站同意其观点,不得发布违反法律法规的内容!
