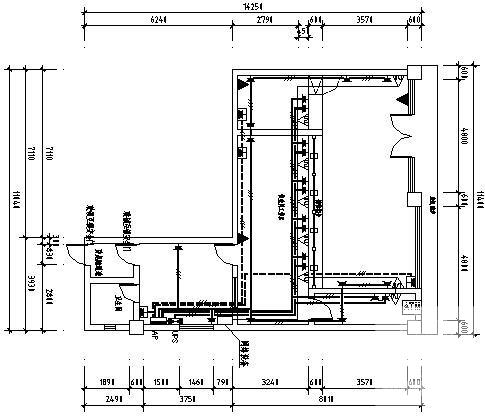
单层邮政所营业厅电气改造施工图纸
- 发布时间:2021-11-24
- 评论次数:0
- 浏览次数:0
- 文件大小:0.08 MB
- 收藏次数:0
-
文件名称:
附件-995856657507956756576.rar
相关下载
- 邮政所营业厅电气改造CAD施工图纸(照明灯具布置)()
- 3层银行及邮政营业厅电气施工图纸
- 证券营业厅电气CAD图纸
- 招待所改造电气设计.dwg
- 移动营业厅电气装修CAD图纸
- 地税营业厅电气设计图纸.dwg
- 银行营业厅改造加固工程预算书(附CAD图纸)
- 区农行营业厅电气设计.dwg
- 古建营业厅施工CAD图纸
- 大型工厂改造项目电气施工方案(110kv变电所)
- 10kV开闭所改造工程电气图纸(电流互感器)
- 两层营业厅电气CAD施工图纸(照明、电话、等电位)
- 变电所电气图纸.
- 变电所电气施工CAD图纸
- 变电所电气施工图纸
- 单层车间改造给排水消防CAD施工图纸
- 邮政大楼建施CAD图纸
- 邮政局水暖电全套图纸
- 移动营业厅电气装修图(5页CAD图纸)
- 税营业厅装饰电气设计图纸.dwg
全部评论
评论网友评论仅友表达个人看法,并不表明本站同意其观点,不得发布违反法律法规的内容!
