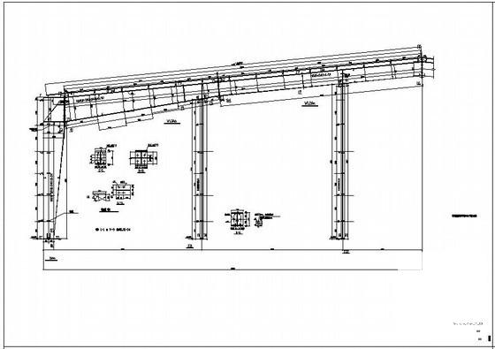
43m超大跨度钢结构设计图纸
- 发布时间:2021-11-24
- 评论次数:0
- 浏览次数:0
- 文件大小:0.91 MB
- 收藏次数:0
- 
								文件名称: 附件-995878885999690709657.rar 附件-995878885999690709657.rar
								钢结构结构设计下载
							
						- 超大跨度厂房屋盖结构设计
- 艺术中心工程超高超大艺术墙钢结构施工技术.pdf
- 跨度为21米全钢结构厂房CAD图纸
- 长跨度球形结点钢结构架施工测量
- 厂房工程施工方案(大跨度钢结构)
- 现代大跨度空间钢结构施工技术.pdf
- 超大地下车库建筑施工CAD图纸
- 超大型商场电气接线CAD图纸
- 超大地下车库建筑施工CAD图纸
- 跨度63米单层钢结构厂房结构设计施工图纸
- 跨度10米单层钢结构厂房结构设计施工图纸
- 大跨度钢结构大棚结构设计方案CAD图纸
- 大跨度33米钢结构桁架玻璃屋顶结构设计CAD图纸
- 跨度25米单层钢结构厂房结构设计CAD图纸(7度抗震)
- 跨度15米单层钢结构厂房结构设计图纸(独立基础)
- 跨度9米大学体育馆钢结构初步设计CAD图纸
- 商业长街大跨度屋面采光天井设计CAD图纸(钢结构节点大样)
- 跨度18.6m单层钢结构厂房结构设计CAD图纸(独立基础)
- 跨度36米单层钢结构厂房结构设计CAD图纸(桩基础)
- 厂房29米跨度钢结构设计CAD施工方案图纸()
全部评论
						
							评论网友评论仅友表达个人看法,并不表明本站同意其观点,不得发布违反法律法规的内容!
						
						
 
	              	 
	              	 
	              	