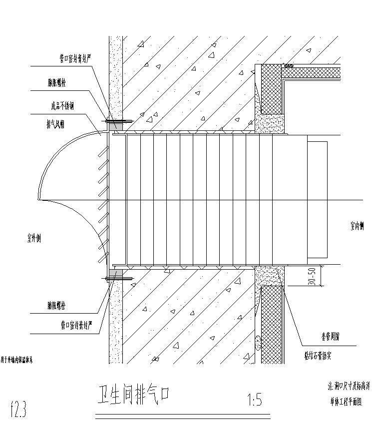
外墙留洞通用节点详图纸设计
- 发布时间:2021-12-09
- 评论次数:0
- 浏览次数:0
- 文件大小:0.14 MB
- 收藏次数:0
-
文件名称:
附件-996085767708956876.dwg
外墙节点详图下载
- 地下混凝土外墙留洞做法节点构造详图纸
- 空中花园结构留洞节点构造图纸cad
- 基础梁留洞加筋节点构造设计详图纸
- 7张外墙防水节点详大样图(CAD)
- 框架住宅详细设计CAD图纸、卫生间留洞节点构造详细设计CAD图纸
- 中水处理站预埋件及池壁留洞CAD图纸
- 超高层综合楼外墙施工缝留设示意图纸cad
- 6层住宅楼给排水设计图纸,留洞图,污水系统图
- 7个外墙,变形缝,散水,墙身防水节点CAD详大样图
- 焊缝通用详大样图2018
- 外墙加固节点详细设计CAD图纸
- 外墙防水节点合集
- 服务中心地上通用节点详大样图2018
- 外墙模板节点构造设计详图
- 分离式双洞隧道消防洞平面竣工节点CAD详图纸设计
- 分离式双洞隧道围岩段消防洞竣工节点CAD详图纸设计
- 分离式双洞隧道出口洞门竣工节点CAD详图纸设计
- 分离式双洞隧道加强段消防洞竣工节点CAD详图纸设计
- 分离式双洞隧道洞围岩衬砌断面节点CAD详图纸设计
- 分离式双洞隧道配电洞节点CAD详图纸设计
全部评论
评论网友评论仅友表达个人看法,并不表明本站同意其观点,不得发布违反法律法规的内容!
