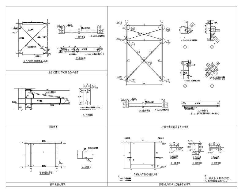
多种门式刚架钢结构节点详大样图
- 发布时间:2021-12-09
- 评论次数:0
- 浏览次数:0
- 文件大小:1.26 MB
- 收藏次数:0
-
文件名称:
附件-996085779775600995.dwg
钢结构节点大样图下载
- 门式刚架仓库围护结构节点构造CAD详大样图
- 门式刚架厂房8米吊车梁节点构造CAD详大样图
- 门式钢架钢结构设计节点CAD详大样图
- 门式钢架钢结构设计节点CAD详大样图.dwg
- 门式刚架轻钢结构厂房
- 门式刚架节点详细设计CAD图纸之格构式门式刚架(结构)
- 公司门式刚架节点图纸集
- 门式刚架节点CAD详图纸
- 钢结构门式钢架节点大样图纸
- 钢结构节点选之格构式门式刚架(9页CAD图纸)
- 钢结构节点精选之格构式门式刚架_CAD
- 多种吊挂式玻璃幕墙节点大样图纸
- 单层门式刚架钢结构厂房转换图
- 单层钢结构门式刚架厂房(21米跨)
- 带夹层单层钢结构门式刚架厂房
- 门式刚架钢结构工程CAD施工图纸(,)
- 门式刚架钢结构厂房(CAD,12张)
- 门式刚架钢结构设计说明
- 论门式刚架钢结构设计.pdf
- 门式刚架钢结构设计评述.pdf
全部评论
评论网友评论仅友表达个人看法,并不表明本站同意其观点,不得发布违反法律法规的内容!
