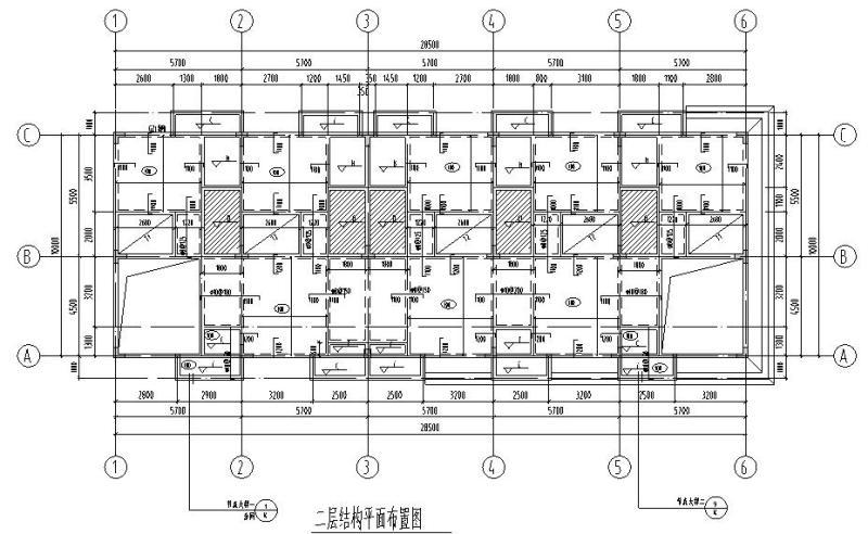
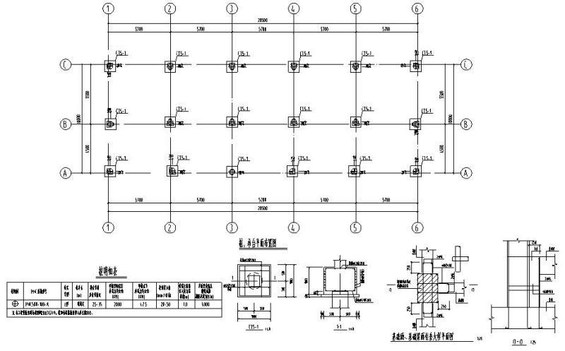
3层文化产业园商业办公楼混凝土结构施工方案大样图
- 发布时间:2021-12-09
- 评论次数:0
- 浏览次数:0
- 文件大小:1.41 MB
- 收藏次数:0
-
文件名称:
附件-996075890759975890.dwg
混凝土结构大样图下载
- 3层产业园综合办公楼栋混凝土结构施工方案大样图
- 3层商业办公楼混凝土结构施工方案大样图
- 文化产业园热力站变电站结构施工方案图纸
- 文化产业园现代风格企业办公楼建筑方案设计(含15张图纸)
- 文化产业园区办公楼建筑CAD图纸
- 远洋太古里文化商业综合体建筑方案文本(文化部分).pdf
- 3层产业园综合楼栋混凝土结构施工方案大样图
- 5层商业酒店混凝土结构施工方案大样图(CAD)
- 4层小型商业混凝土结构施工方案大样图(CAD)
- 4层商业混凝土结构施工方案大样图(CAD)
- 7层商业混凝土结构施工方案大样图(CAD)
- 3层小型商业混凝土结构施工方案图纸
- 电子产业园多层文化宫建筑项目施工图纸
- 绿博文化产业园机电施工图纸水暖电.
- 2层砖混结构办公楼混凝土加固施工方案大样图
- 3层办公楼混凝土结构施工方案大样图
- 5层混凝土框架结构办公楼施工方案大样图(CAD)
- 6层混凝土框架办公楼结构施工方案大样图(CAD)
- 4层办公楼混凝土结构施工方案大样图(CAD)
- 4层混凝土框架结构办公楼施工方案大样图CAD
全部评论
评论网友评论仅友表达个人看法,并不表明本站同意其观点,不得发布违反法律法规的内容!
