沉绿地水池节点详图纸设计

附件详情:下沉绿地水池节点详图设计

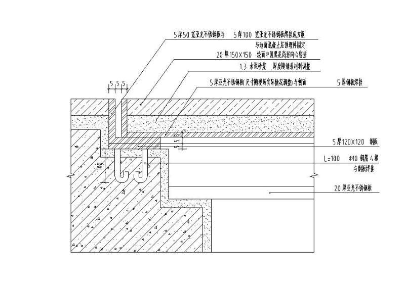
包含:平面图、立面图、剖面图。


沉绿地水池节点详图设计 (1)

沉绿地水池节点详图设计 (2)

沉绿地水池节点详图设计 (3)

沉绿地水池节点详图设计 (4)

沉绿地水池节点详图设计 (5)

沉绿地水池节点详图设计 (6)


以下是附件的其中一部分截图,共6张,您也可以 搜索 更多您想要的资源
  • 水池节点详图 - 1
    水池节点详图 - 1
  • 水池节点详图 - 2
    水池节点详图 - 2
  • 水池节点详图 - 3
    水池节点详图 - 3
  • 水池节点详图 - 4
    水池节点详图 - 4
  • 水池节点详图 - 5
    水池节点详图 - 5
  • 水池节点详图 - 6
    水池节点详图 - 6
以上是部分截图,请下载附件后查看完整高清内容
网站首页  | 
本站所有内容均由网友自主分享,仅供学习和参考,如有侵权内容或者违法行为,请及时联系站长删除。