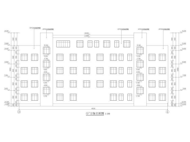
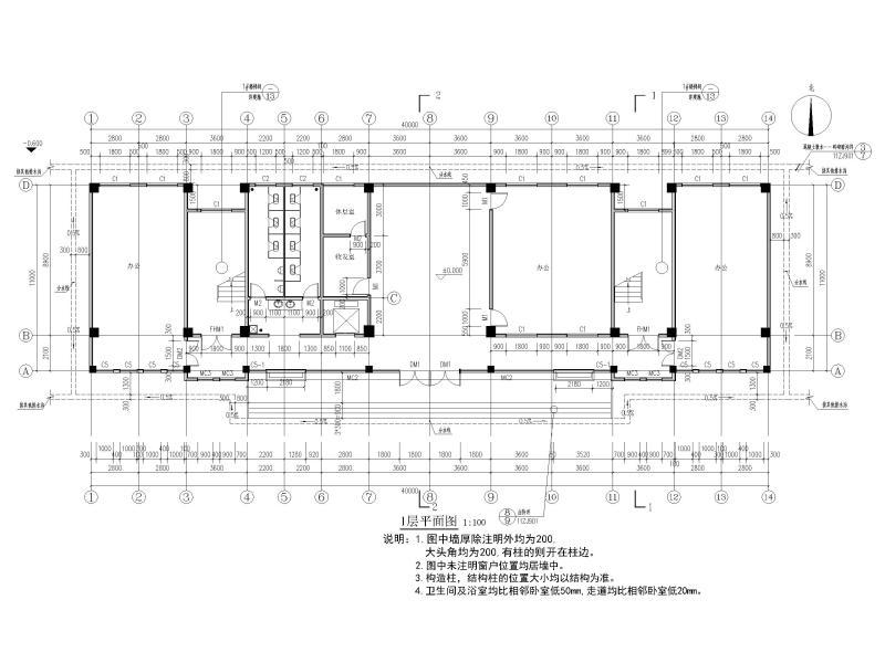
5层框架结构研发中心办公建筑施工图纸
- 发布时间:2021-12-09
- 评论次数:0
- 浏览次数:0
- 文件大小:0.66 MB
- 收藏次数:0
- 
								文件名称: 附件-996079585679588058.dwg 附件-996079585679588058.dwg
								办公建筑图纸下载
							
						- 高层科技研发中心办公建筑施工大样图
- 研发中心施工图纸建筑
- 框架结构独立基础研发中心楼结构设计施工图纸
- 6层框架结构研发中心办公楼结构施工图纸
- 2层框架结构医学研发中心结施施工图纸2017
- 3层框架结构实验研发中心结施施工图纸2017
- 6层框架结构研发中心结构CAD施工图纸
- 4层研发中心空调图纸.dwg
- 3层框架结构研发中心梁板柱CAD图纸
- 研发中心冬季施工方案(测温点布设图纸)
- 16层研发中心空调通风设计施工图纸
- 质检研发中心空调设计施工图纸
- 5层研发中心空调施工图纸
- 汽车研发中心给排水消防CAD施工图纸
- 框架研发中心楼结构CAD施工图纸
- 银行4层研发中心电气CAD施工图纸
- 5层研发中心给排水CAD施工图纸
- 3层研发中心电气CAD施工图纸
- 研发中心施工大样图给排水
- 研发中心暖通施工大样图2020.9
全部评论
						
							评论网友评论仅友表达个人看法,并不表明本站同意其观点,不得发布违反法律法规的内容!
						
						
 
	              	 
	              	 
	              	 
	              	 
	              	