梁柱刚接连接节点详图纸
- 发布时间:2021-12-09
- 评论次数:0
- 浏览次数:0
- 文件大小:0.13 MB
- 收藏次数:0
-
文件名称:
附件-996068098978890708.zip
梁柱节点详图下载
- 800梁柱刚接连接节点构造CAD详图纸
- 700梁柱刚接连接(弱轴,顶部)节点构造CAD详图纸
- 700梁柱刚接连接(弱轴)节点构造CAD详图纸
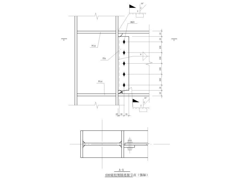
- 600梁柱刚接连接(强轴)节点构造CAD详图纸
- 500梁柱刚接连接(弱轴,顶部)节点构造CAD详图纸
- 400梁柱刚接连接(弱轴)节点构造CAD详图纸
- 400梁柱刚接连接(强轴)节点构造CAD详图纸
- 500梁柱刚接连接(弱轴)节点构造CAD详图纸
- 800梁柱刚接连接节点构造CAD详图纸(弱轴)
- 800梁柱刚接连接节点构造CAD详图纸(强轴)
- 700梁柱刚接连接节点构造CAD详图纸(弱轴,顶部)
- 700梁柱刚接连接节点构造CAD详图纸(弱轴)
- 600梁柱刚接连接节点构造CAD详图纸(弱轴)
- 600梁柱刚接连接节点构造CAD详图纸(强轴)
- 500梁柱刚接连接节点构造CAD详图纸(弱轴,顶部)
- 500梁柱刚接连接节点构造CAD详图纸(弱轴)
- 400梁柱刚接连接节点构造CAD详图纸(弱轴)
- 400梁柱刚接连接节点构造CAD详图纸(强轴)
- 钢结构节点选之支撑与梁柱连接CAD详大样图.dwg
- 箱型梁柱刚接和铰接做法CAD施工图纸
全部评论
评论网友评论仅友表达个人看法,并不表明本站同意其观点,不得发布违反法律法规的内容!
