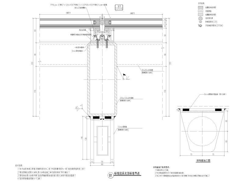
采光顶钢结构节点详图纸
- 发布时间:2021-12-08
- 评论次数:0
- 浏览次数:0
- 文件大小:0.48 MB
- 收藏次数:0
-
文件名称:
附件-996068909805878898.dwg
钢结构采光顶图纸下载
- 钢结构玻璃采光顶详大样图
- 采光顶钢结构节点构造详细设计CAD图纸
- 采光顶钢结构节点构造详细设计CAD图纸
- 采光顶节点详细设计CAD图纸
- 采光顶幕墙节点CAD详图纸
- 采光顶节点CAD详图纸
- 汽车库钢结构采光顶施工图纸
- 钢结构采光顶CAD施工方案图纸
- 钢结构网架采光顶详细设计CAD图纸
- 钢结构点式玻璃采光顶CAD图纸
- 钢结构采光顶结构CAD施工图纸
- 钢结构CAD详图纸之采光顶钢架节点构造CAD详图纸.dwg
- 大跨度钢结构采光顶幕墙节点CAD详图纸
- 大厦入口采光顶节点构造详细设计CAD图纸
- 圆弧拱形采光顶节点构造详细设计CAD图纸
- 采光顶钢架结构节点构造详细设计CAD图纸
- 采光顶节点构造详细设计CAD图纸
- 平面采光顶节点构造详细设计CAD图纸
- 圆弧拱形采光顶节点构造详细设计CAD图纸
- 大厦入口采光顶节点构造详细设计CAD图纸
全部评论
评论网友评论仅友表达个人看法,并不表明本站同意其观点,不得发布违反法律法规的内容!
