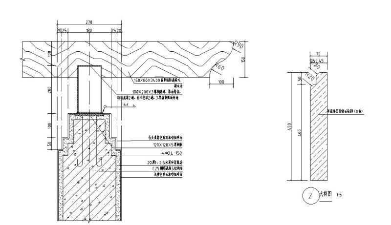
钢筋混凝土景观防腐木廊架详图纸设计
- 发布时间:2021-12-08
- 评论次数:0
- 浏览次数:0
- 文件大小:0.36 MB
- 收藏次数:0
- 
								文件名称: 附件-996099789860986095.dwg 附件-996099789860986095.dwg
								钢筋混凝土设计下载
							
						- 景观防腐木廊架详图纸设计
- 弧形防腐木格栅廊架详图纸设计
- 防腐木廊架CAD施工图纸
- 双层防腐木廊架CAD施工图纸
- 小型防腐木廊架CAD施工图纸
- 扇形防腐木廊架CAD施工图纸
- 花架,小品,防腐木,玻璃廊架
- 景观细部CAD施工大样图|廊架九详大样图设计
- 廊架施工做法CAD详大样图
- 景观廊架照明CAD详图纸
- 景观廊架施工CAD图纸
- 滨水防腐木廊架CAD施工图纸
- 滨水防腐木廊架施工CAD图纸,含节点大样
- 小型防腐木廊架施工dwg和CAD图纸
- 景观弧形方通廊架详图纸设计
- 景观廊架照明详细设计CAD图纸
- 景观设计深度大样图示-自行车入口廊架CAD详大样图
- 景观特色弧形廊架详细CAD施工图纸
- 景观廊架施工CAD详图纸5例
- 廊架水池做法详图纸设计
全部评论
						
							评论网友评论仅友表达个人看法,并不表明本站同意其观点,不得发布违反法律法规的内容!
						
						
 
	              	 
	              	 
	              	 
	              	 
	              	